Passer au contenu principal Passer à la recherche Passer à la navigation principale
Nous contacter
Sales Contact Image
Conseil de vente 080 011 464
Service de rappel
Jours
100 € de réduction dès 2 500 € d'achat | Code : SUMMER100 | Augmentation des prix le 1er juin

9 829,00 €

TVA incluse | Livraison gratuite

100 € de réduction dès 2 500 € d'achat | Code : SUMMER100

Abri de jardin Alpholz Peter

Les accessoires sélectionnés ci-dessous seront ajoutés au panier.
Purchase Advice Image
Nos experts vous aident à faire le meilleur choix Tel 080 011 464
Une question ? On vous fait une offre !
Délai de livraison 5-6 semaines
Livraison gratuite
Skonto Icon
-2 % avec le virement bancaire
Livraison à la période souhaitée
Accessoires adaptés à ce produit
Description

La maison de jardin ouvrier Peter d'Alpholz en épicéa nordique assure un look super moderne avec ses fenêtres du sol au plafond. Avec beaucoup de lumière et une très grande mezzanine, cette maison est ton oasis de bien-être parfaite - pour des heures de détente dans le jardin ou comme lieu de retraite créatif.

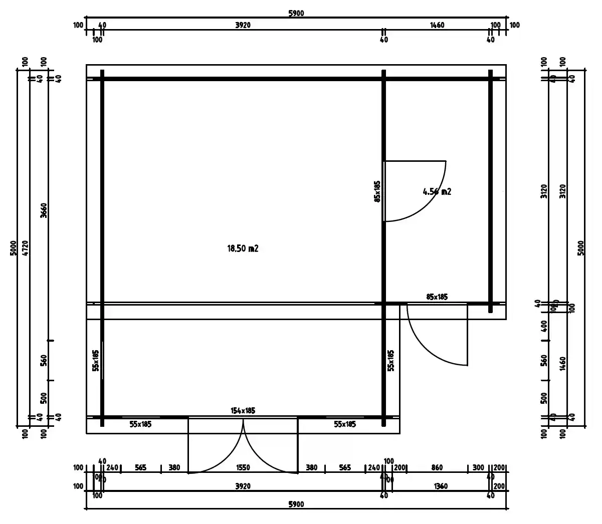
S urface au sol de 24 m² : s'intègre parfaitement dans ton jardin ouvrier.

Avec plancher de couchage : 9,8 m² de confort supplémentaires

Local à outils intégré : accessible de l'extérieur et de l'intérieur

Informations complémentaires :

  • Construction robuste en madriers de 40 mm
  • Tous les madriers avec fraisage d'angle quadruple (étanche au vent et à la pluie)
  • Vitrage des portes et des fenêtres en verre ISO
  • Porte extérieure et porte de chambre de haute qualité avec cadre en bois lamellé et seuil de porte en aluminium
  • Escalier pour la mezzanine
  • Barres anti-tempête pour la protection contre le vent
  • Serrure à cylindre, garniture de poignée, matériel de montage & plan de montage
  • Livraison en nature sans traitement de peinture
  • Les barreaux inclus dans la livraison peuvent être montés en option
  • Plancher : Accessoires optionnels (planches massives à rainure et languette pour le plancher de la chambre à coucher sont incluses)
  • Couverture de toit : Accessoires optionnels
  • Montage inversé : Non
Accessoires et Services
3 Accessoire(s) sont actuellement séléctionné(s) (incluant nos recommandations). Les quantités adaptées sont déjà définies.

Ce dont vous avez besoin pour le montage

Set eco Accessoires de montage et de fixation S

Plus de détails

Set eco Accessoires de montage et de fixation S
Détails du produit
Référence A0.6.00871
Type de produit Accessoires

Set d'accessoires de base avec jusqu'à 20% d'économie par rapport à l'achat individuel !

Le kit parfait pour un montage sûr et l'ancrage de ton abri de jardin - protège de manière fiable contre l'humidité, le vent et les tempêtes. En un seul clic, tu reçois tous les composants importants en quantité suffisante pour une construction durable et stable.

Composé de :

  • Barrière contre l'humidité (env. 50 pièces) en granulés de caoutchouc spéciaux - Protège contre les remontées d'humidité, compense les inégalités et assure le drainage et la circulation de l'air.
  • Équerre anti-tempête (set de 4 pièces) - Pour fixer solidement l'abri de jardin aux fondations (vis & chevilles non fournies).
  • Kit d'ancrage au vent (kit pour 2 côtés) - Relie les madriers supérieurs et inférieurs et les empêche de s'écarter en cas de tempête.

Notre recommandation

Pour une protection optimale et durable contre les tempêtes et l'humidité, nous recommandons l'utilisation combinée de tous les composants contenus dans le kit. Ainsi, ton abri de jardin est fixé de la meilleure manière possible et protégé de manière fiable contre le vent et les intempéries.

€ 139,00

Set eco parquet universel 27 m² - Plancher 18 mm, bois naturel non traité

Plus de détails

Set eco parquet universel 27 m² - Plancher 18 mm, bois naturel non traité
Détails du produit
Référence A0.6.00313.0
Type de produit Accessoires
Type d'accessoire Set de sol

Kit universel de planchers en bois avec jusqu'à 20% d'économie par rapport à l'achat individuel !

Adapté à la maison - Avec ce kit, vous avez en un clic le nombre de paquets de planchers en bois correspondant au produit que vous souhaitez.

Contenu du set :

  • planches à rainure et languette de 18 mm d'épaisseur, naturelles
  • nombre approprié de plinthes, avec ou sans imprégnation en usine
  • bois de fondation imprégné en autoclave
  • l'imprégnation peut éventuellement différer de la couleur de la maison
  • matériau : épicéa nordique

Veuillez noter que le plancher doit être adapté individuellement. Une notice de montage détaillée est jointe au kit.

Ce kit est calculé pour des maisons d'une surface de base de 24,01 à 27 m². Si vous n'êtes pas sûr(e), nous vous recommandons d'acheter les articles séparément.

Plans de montage et documents

€ 1.779,00

Kit universel de planchers en bois avec jusqu'à 20% d'économie par rapport à l'achat individuel !

Adapté à la maison - Avec ce kit, vous avez en un clic le nombre de paquets de planchers en bois correspondant au produit que vous souhaitez.

Contenu du set :

  • planches à rainure et languette de 18 mm d'épaisseur, naturelles
  • nombre approprié de plinthes, avec ou sans imprégnation en usine
  • bois de fondation imprégné en autoclave
  • l'imprégnation peut éventuellement différer de la couleur de la maison
  • matériau : épicéa nordique

Veuillez noter que le plancher doit être adapté individuellement. Une notice de montage détaillée est jointe au kit.

Ce kit est calculé pour des maisons d'une surface de base de 24,01 à 27 m². Si vous n'êtes pas sûr(e), nous vous recommandons d'acheter les articles séparément.

Kit universel de planchers en bois avec jusqu'à 20% d'économie par rapport à l'achat individuel !

Adapté à la maison - Avec ce set, vous avez en un clic le nombre de paquets de planchers en bois correspondant au produit que vous souhaitez.

Contenu du set :

  • planches à rainure et languette de 28 mm d'épaisseur, imprégnées en usine
  • nombre approprié de plinthes, avec ou sans imprégnation en usine
  • bois de fondation imprégné en autoclave
  • l'imprégnation peut éventuellement différer de la couleur de la maison
  • matériau : épicéa nordique

Veuillez noter que le plancher doit être adapté individuellement. Une notice de montage détaillée est jointe au kit.

Ce kit est calculé pour des maisons d'une surface de base de 24,01 à 27 m². Si vous n'êtes pas sûr(e), nous vous recommandons d'acheter les articles séparément.

Kit universel de planchers en bois avec jusqu'à 20% d'économie par rapport à l'achat individuel !

Adapté à la maison - Avec ce kit, vous avez en un clic le nombre de paquets de planchers en bois correspondant au produit que vous souhaitez.

Contenu du set :

  • planches à rainure et languette de 18 mm d'épaisseur, naturelles
  • nombre approprié de plinthes, avec ou sans imprégnation en usine
  • bois de fondation imprégné en autoclave
  • l'imprégnation peut éventuellement différer de la couleur de la maison
  • matériau : épicéa nordique

Veuillez noter que le plancher doit être adapté individuellement. Une notice de montage détaillée est jointe au kit.

Ce kit est calculé pour des maisons d'une surface de base de 24,01 à 27 m². Si vous n'êtes pas sûr(e), nous vous recommandons d'acheter les articles séparément.

Détails du produit
Référence A0.6.00313.0
Type de produit Accessoires
Type d'accessoire Set de sol
Plans de montage et documents

Kit universel de planchers en bois avec jusqu'à 20% d'économie par rapport à l'achat individuel !

Adapté à la maison - Avec ce set, vous avez en un clic le nombre de paquets de planchers en bois correspondant au produit que vous souhaitez.

Contenu du set :

  • planches à rainure et languette de 28 mm d'épaisseur, imprégnées en usine
  • nombre approprié de plinthes, avec ou sans imprégnation en usine
  • bois de fondation imprégné en autoclave
  • l'imprégnation peut éventuellement différer de la couleur de la maison
  • matériau : épicéa nordique

Veuillez noter que le plancher doit être adapté individuellement. Une notice de montage détaillée est jointe au kit.

Ce kit est calculé pour des maisons d'une surface de base de 24,01 à 27 m². Si vous n'êtes pas sûr(e), nous vous recommandons d'acheter les articles séparément.

Détails du produit
Type de produit Accessoires
Type d'accessoire Set de sol
Référence A0.6.00313.3
Plans de montage et documents

Kit économique bardeau de toiture - 33 m²

Plus de détails

Kit économique bardeau de toiture - 33 m²
Détails du produit
Type de produit Accessoires
Référence A0.6.00851
Type d'accessoire Kit de couverture de toit

Ton kit complet pour un toit étanche à la pluie - le kit complet de bardeaux te permet d'économiser jusqu'à 20 % par rapport à l'achat individuel !

Livraison pour des surfaces de toit jusqu'à 33 m² :

- Bardeaux rectangulaires Premium noirs (14 paquets de 3 m² chacun)

- Lé de sous-toiture Ondutiss Strong Air 120 (4 rouleaux)

- Pointes de carton bitumé pour toiture (12 paquets)

- Colle bitumineuse (4 tubes)

Bardeaux rectangulaires Premium noirs :

Nos bardeaux bitumineux rectangulaires Premium séduisent par leur couche de support de haute qualité en voile de verre robuste et par les granulés minéraux nobles et de couleur intense sur la face supérieure. Cette combinaison assure non seulement un aspect élégant, mais aussi une protection maximale : les bardeaux empêchent de manière fiable la pénétration de l'eau, offrent une surface résistante au vent et aux UV et confèrent à ton toit un aspect élégant et facile à entretenir - durablement beau et résistant de manière fiable aux intempéries.

Lé de sous-toiture Ondutiss Strong Air 120 :

L'écran de sous-toiture et de coffrage triple couche de haute qualité en polypropylène offre une protection fiable contre le vent et l'humidité et favorise une isolation thermique efficace.

- Dimensions : 10 x 1 m

Pointes de toit :

Les pointes de carton bitumé servent à fixer les bardeaux et l'écran de sous-toiture de manière robuste et résistante aux intempéries. Leur surface galvanisée assure une protection fiable contre la corrosion.

- Dimensions : 2,5 x L 15 mm

- Ø tête : 8 mm

- Galvanisé

- Quantité : env. 200 g = env. 133 pièces

Colle à bitume :

Avec cette colle bitumineuse de haute qualité, tu peux fixer les bardeaux exposés au vent en plus des pointes de carton bitumé et assurer ainsi la durabilité idéale de ton toit - parfaitement adaptée également aux réparations rapides et fiables. La colle est prête à l'emploi - pas de dilution, pas de chauffage, il suffit de l'appliquer et de la fixer.
Pour une adhérence optimale : assure-toi que la surface est propre, sèche et exempte de sable, de feuilles ou d'autres salissures. La surface ne doit pas être verglacée ou recouverte de givre.

- Couleur : noir

- Contenu : 310 ml

- Pour l'application sur le bois et le bitume

Le paquet d'accessoires est parfaitement adapté aux besoins habituels Selon le type de fixation et de chevauchement, la consommation de matériau peut légèrement varier.

€ 719,00

Larmier pour couvrir les planches du pignon

Plus de détails

Larmier pour couvrir les planches du pignon
Détails du produit
Type de produit Accessoires
Type d'accessoire Tôle d'égout
Surface de base (m²) Gamme 0 - 10 m²
Profondeur, avancée du toit incluse 12
Référence F1.6.00005
Hauteur totale 5
Surface de base 0.24
Gamme de largeurs 176 - 200
Largeur avec débord de toit 200

Tôle de pignon pour recouvrir les planches de pignon.

  • Couleur : anthracite
  • Matériau : aluminium revêtu par poudre
  • épaisseur : 0,8 mm
  • profondeur : 120 mm
  • hauteur : 50 mm
  • Hauteur du larmier : 15 mm
  • Longueur : 2 m

Vis de ferblantier incluses

€ 49,00

Kit de gouttières RG 100 anthracite métallisé - pour 2 côtés de toit jusqu'à 6 m chacun

Plus de détails

Kit de gouttières RG 100 anthracite métallisé - pour 2 côtés de toit jusqu'à 6 m chacun
Détails du produit
Type de produit Accessoires
Adapté à la forme du toit Double pente
Type d'accessoire Kit de gouttières
Matériau Plastique
Référence M6.6.00017
Article à variantes 3
Largeur avec débord de toit 600

Pour les cabanes en bois avec des longueurs de côtés allant jusqu'à 6 m, jeu complet pour 2 côtés de maison en bois.

Les jeux de gouttières Marley protègent les murs et les fondations des abrs de jardin et des cabanes de manière sûre et fiable contre les dommages causés par l'eau de pluie.

Avantages :

  • Ensemble complet avec gouttières, tuyaux de descente et accessoires de fixation.
  • Facile à assembler
  • Tout est complet dans le set
  • Résistant aux intempéries, aux UV et à la température
  • Plastique de haute qualité, résistant aux chocs
  • Qualité supérieure - Fabriqué en Allemagne
  • Garantie de 10 ans

Contenu de l'ensemble :

  • 6x gouttière, demi-ronde 2 m RG 100
  • 4x plateau de raccordement de gouttière RG 100
  • 4x pièce d'extrémité pour RG100 gauche et droite
  • 20x support de gouttière RG 100
  • Angle de réglage 20x pour le support de gouttière
  • 2x pièce de connexion RG 100 / DN 75
  • 4x coude de tuyau DN 75, 45
  • 2x tuyau de descente DN 75 2 m
  • 4x collier de serrage avec boulon 

€ 639,00

Attache de gouttière

Plus de détails

Attache de gouttière
Détails du produit
Type de produit Accessoires
Type d'accessoire Accessoires pour gouttières
Référence F1.6.01247

Une gouttière est la finition professionnelle de l'avant-toit. Il constitue la tôle de transition entre la surface du toit et la gouttière. L'insert assure une entrée d'eau contrôlée dans la gouttière.

Matériau : acier galvanisé, revêtu par poudre.

Dimensions : A:60 mm, B:125 mm, D:15 mm

Longueur : 200 cm

Épaisseur : 0,50 mm

Vis de ferblantier incluses

€ 39,00

Livraison à la période souhaitée et service administratif

Garantie Confort

Plus de détails

Garantie Confort
Détails du produit
Type de produit Montage
Référence GAT_Komfort

Quels produits sont couverts par la Garantie Confort ?

Notre Garantie Confort s'applique exclusivement aux produits destinés à un usage privé, notamment :

  • Abris de jardin et cabanes à outils – un espace de détente ou une solution de stockage pratique
  • Saunas – pour des moments de bien-être et de relaxation à domicile
  • Aires de jeux pour enfants – un espace ludique pour s’amuser en toute sécurité
  • Pavillons en bois – un coin de paradis dans votre jardin
  • Carports – une protection efficace pour votre véhicule contre la pluie, la neige et le soleil
  • Garages – un espace sécurisé avec du rangement supplémentaire

Grâce à cette garantie, vous bénéficiez d’un produit de qualité et d’une assistance rapide en cas de besoin.

Que couvre la Garantie Confort ?

Avec la Garantie Confort, pas d’inquiétude à avoir. En cas de dommage, vous recevez gratuitement les pièces de rechange, pour les éléments suivants : 

  • Portes (bris de verre jusqu’à 200€)
  • Fenêtres (bris de verre jusqu’à 200€)
  • Gouttières – pour une évacuation efficace de l’eau
  • Serrures de porte – pour une sécurité optimale
  • Ferrures – pour remplacer de petites pièces essentielles
  • Revêtement de toiture (feutre bitumé, bardeaux, KSK) – une protection efficace contre les intempéries

À savoir :
La Garantie Confort couvre uniquement la fourniture des pièces de rechange. L’installation reste à votre charge.

Avec la Garantie Confort, vous bénéficiez d’une protection optimale et profitez pleinement de votre produit Abrineo.be en toute sérénité.

Conditions de garantie

Retrouvez tous les détails et informations supplémentaires sur la Garantie Confort

€ 69,00

Accessoires pour votre produit

PGH Huile-cire dure 2,5 L

Plus de détails

PGH Huile-cire dure 2,5 L
Détails du produit
Type de produit Accessoires
Référence R9.6.00002

Huile-cire dure de haute qualité pour l'intérieur

Notre huile-cire dure offre une solution de haute qualité pour l'apprêt et le traitement de différents supports absorbants à l'intérieur. Avec une surface satinée et résistante qui ravive les structures naturelles et approfondit les teintes, elle offre les meilleurs résultats pour les sols en bois, en liège, en pierre et autres surfaces. Facile à appliquer et testée selon les normes les plus strictes, c'est le choix idéal pour des résultats professionnels.

Détails de l'article Huile-cire dure :

  • Application : Apprêt et traitement des supports absorbants à l'intérieur.

  • Propriétés : surface satinée, approfondit la teinte, hydrofuge.
  • Testée sur la résistance aux produits chimiques et la migration.
  • Composants : huile de lin, huile de bois, huile de ricin, ester de résine naturelle, autres.
  • Teneur en COV : max. 440 g/l (valeur limite UE : max. 500 g/l).
  • Application : Agiter avant l'emploi, appliquer en fine couche, polir.
  • Temps de séchage : env. 6-12 heures, recouvrable après 16-24 heures.
  • Consommation : 30-50 g/m² ; rendement env. 20 m²/l.
  • Stockage : Au frais, au sec, non ouvert, se conserve au moins 24 mois.
  • Élimination des déchets : Selon les prescriptions locales.
  • Remarques : Les couleurs sont données à titre indicatif, il est recommandé de faire un essai.
Plans de montage et documents

€ 79,00

Kit de protection anti-intempéries M – jusqu’à 48 m² - Schwedenrot - Wetterschutzfarbe

Plus de détails

Kit de protection anti-intempéries M – jusqu’à 48 m² - Schwedenrot - Wetterschutzfarbe
Détails du produit
Type de matériau Couleur
Référence R9.6.00004.0
Matériau Produits d'entretien
Type de produit Accessoires
Type d'accessoire Set de couleurs opaques
Couleur de base Rouge

Notre kit de peinture de protection contre les intempéries M (jusqu’à 48 m²) protège efficacement vos bois extérieurs contre le soleil, la pluie, le froid et les rayons UV.

Grâce à son film de peinture élastique, il assure une protection durable tout en offrant une finition uniforme et colorée.

La peinture bois rouge satiné, respectueuse de l’environnement, est particulièrement résistante. Elle ne s’écaille pas et convient parfaitement au bois brut de sciage ainsi qu’à toutes les constructions en bois destinées à l’extérieur.

Ses avantages :

  • Excellent pouvoir couvrant

  • Résistante aux intempéries et aux UV

  • Perméable à la vapeur d’eau

  • Film de peinture élastique

  • Protection du film contre les champignons

  • Résistante à la salive et à la sueur (norme DIN 53 160)

Avant d’appliquer votre peinture de protection et d’obtenir un résultat final impeccable, une bonne préparation est essentielle.

C’est pour cela que notre fond pour bois à pores ouverts a été spécialement conçu.

Il pénètre en profondeur dans le bois tout en le laissant respirer. Il garantit une adhérence optimale pour la couche de peinture suivante. Vous profitez ainsi d’un résultat à la fois esthétique et durable, que vous utilisiez une lasure ou un vernis.

Pourquoi appliquer une couche de fond ?

  • Adhérence optimale pour les lasures et vernis

  • À pores ouverts et action en profondeur

  • Adapté à un usage extérieur

  • Protection filmogène contre les champignons

  • Résistant aux intempéries après séchage complet

Contenu du kit :

  • 2 × 2,5 L de fond pour bois

  • 3 × 2,5 L de peinture de protection contre les intempéries – rouge suédois

€ 239,00

Notre kit de peinture de protection contre les intempéries M (jusqu’à 48 m²) protège efficacement vos bois extérieurs contre le soleil, la pluie, le froid et les rayons UV.

Grâce à son film de peinture élastique, il assure une protection durable tout en offrant une finition uniforme et colorée.

La peinture bois rouge satiné, respectueuse de l’environnement, est particulièrement résistante. Elle ne s’écaille pas et convient parfaitement au bois brut de sciage ainsi qu’à toutes les constructions en bois destinées à l’extérieur.

Ses avantages :

  • Excellent pouvoir couvrant

  • Résistante aux intempéries et aux UV

  • Perméable à la vapeur d’eau

  • Film de peinture élastique

  • Protection du film contre les champignons

  • Résistante à la salive et à la sueur (norme DIN 53 160)

Avant d’appliquer votre peinture de protection et d’obtenir un résultat final impeccable, une bonne préparation est essentielle.

C’est pour cela que notre fond pour bois à pores ouverts a été spécialement conçu.

Il pénètre en profondeur dans le bois tout en le laissant respirer. Il garantit une adhérence optimale pour la couche de peinture suivante. Vous profitez ainsi d’un résultat à la fois esthétique et durable, que vous utilisiez une lasure ou un vernis.

Pourquoi appliquer une couche de fond ?

  • Adhérence optimale pour les lasures et vernis

  • À pores ouverts et action en profondeur

  • Adapté à un usage extérieur

  • Protection filmogène contre les champignons

  • Résistant aux intempéries après séchage complet

Contenu du kit :

  • 2 × 2,5 L de fond pour bois

  • 3 × 2,5 L de peinture de protection contre les intempéries – rouge suédois

Notre kit de peinture de protection contre les intempéries M - jusqu'à 48m² protège le bois à l'extérieur de manière fiable contre le soleil,

Notre kit de peinture de protection contre les intempéries M (jusqu’à 48 m²) protège efficacement vos bois extérieurs contre le soleil, la pluie, le froid et les rayons UV.

Grâce à son film de peinture élastique, il assure une protection durable tout en offrant une finition uniforme et colorée.

La peinture bois blanche, respectueuse de l’environnement, est particulièrement résistante. Elle ne s’écaille pas et convient parfaitement au bois brut de sciage ainsi qu’à toutes les constructions en bois destinées à l’extérieur.

Ses avantages :

  • Excellent pouvoir couvrant

  • Résistante aux intempéries et aux UV

  • Perméable à la vapeur d’eau

  • Film de peinture élastique

  • Protection du film contre les champignons

  • Résistante à la salive et à la sueur (norme DIN 53 160)

Avant d’appliquer votre peinture de protection et d’obtenir un résultat final impeccable, une bonne préparation est essentielle.

C’est pour cela que notre fond pour bois à pores ouverts a été spécialement conçu.

Il pénètre en profondeur dans le bois tout en le laissant respirer. Il garantit une adhérence optimale pour la couche de peinture suivante. Vous profitez ainsi d’un résultat à la fois esthétique et durable, que vous utilisiez une lasure ou un vernis.

Pourquoi appliquer une couche de fond ?

  • Adhérence optimale pour les lasures et vernis

  • À pores ouverts et action en profondeur

  • Adapté à un usage extérieur

  • Protection filmogène contre les champignons

  • Résistant aux intempéries après séchage complet

Contenu du kit :

  • 2 × 2,5 L de fond pour bois

  • 3 × 2,5 L de peinture de protection contre les intempéries – blanche

Notre kit de peinture de protection contre les intempéries M - jusqu'à 48m² protège le bois à l'extérieur de manière fiable contre le soleil,

Notre kit de peinture de protection contre les intempéries M (jusqu’à 48 m²) protège efficacement vos bois extérieurs contre le soleil, la pluie, le froid et les rayons UV.

Grâce à son film de peinture élastique, il assure une protection durable tout en offrant une finition uniforme et colorée.

La peinture bois noire, respectueuse de l’environnement, est particulièrement résistante. Elle ne s’écaille pas et convient parfaitement au bois brut de sciage ainsi qu’à toutes les constructions en bois destinées à l’extérieur.

Ses avantages :

  • Excellent pouvoir couvrant

  • Résistante aux intempéries et aux UV

  • Perméable à la vapeur d’eau

  • Film de peinture élastique

  • Protection du film contre les champignons

  • Résistante à la salive et à la sueur (norme DIN 53 160)

Avant d’appliquer votre peinture de protection et d’obtenir un résultat final impeccable, une bonne préparation est essentielle.

C’est pour cela que notre fond pour bois à pores ouverts a été spécialement conçu.

Il pénètre en profondeur dans le bois tout en le laissant respirer. Il garantit une adhérence optimale pour la couche de peinture suivante. Vous profitez ainsi d’un résultat à la fois esthétique et durable, que vous utilisiez une lasure ou un vernis.

Pourquoi appliquer une couche de fond ?

  • Adhérence optimale pour les lasures et vernis

  • À pores ouverts et action en profondeur

  • Adapté à un usage extérieur

  • Protection filmogène contre les champignons

  • Résistant aux intempéries après séchage complet

Contenu du kit :

  • 2 × 2,5 L de fond pour bois

  • 3 × 2,5 L de peinture de protection contre les intempéries – noire

Notre kit de peinture de protection contre les intempéries M (jusqu’à 48 m²) protège efficacement vos bois extérieurs contre le soleil, la pluie, le froid et les rayons UV.

Grâce à son film de peinture élastique, il assure une protection durable tout en offrant une finition uniforme et colorée.

La peinture bois rouge satiné, respectueuse de l’environnement, est particulièrement résistante. Elle ne s’écaille pas et convient parfaitement au bois brut de sciage ainsi qu’à toutes les constructions en bois destinées à l’extérieur.

Ses avantages :

  • Excellent pouvoir couvrant

  • Résistante aux intempéries et aux UV

  • Perméable à la vapeur d’eau

  • Film de peinture élastique

  • Protection du film contre les champignons

  • Résistante à la salive et à la sueur (norme DIN 53 160)

Avant d’appliquer votre peinture de protection et d’obtenir un résultat final impeccable, une bonne préparation est essentielle.

C’est pour cela que notre fond pour bois à pores ouverts a été spécialement conçu.

Il pénètre en profondeur dans le bois tout en le laissant respirer. Il garantit une adhérence optimale pour la couche de peinture suivante. Vous profitez ainsi d’un résultat à la fois esthétique et durable, que vous utilisiez une lasure ou un vernis.

Pourquoi appliquer une couche de fond ?

  • Adhérence optimale pour les lasures et vernis

  • À pores ouverts et action en profondeur

  • Adapté à un usage extérieur

  • Protection filmogène contre les champignons

  • Résistant aux intempéries après séchage complet

Contenu du kit :

  • 2 × 2,5 L de fond pour bois

  • 3 × 2,5 L de peinture de protection contre les intempéries – gris anthracite

Notre kit de peinture de protection contre les intempéries M (jusqu’à 48 m²) protège efficacement vos bois extérieurs contre le soleil, la pluie, le froid et les rayons UV.

Grâce à son film de peinture élastique, il assure une protection durable tout en offrant une finition uniforme et colorée.

La peinture bois rouge satiné, respectueuse de l’environnement, est particulièrement résistante. Elle ne s’écaille pas et convient parfaitement au bois brut de sciage ainsi qu’à toutes les constructions en bois destinées à l’extérieur.

Ses avantages :

  • Excellent pouvoir couvrant

  • Résistante aux intempéries et aux UV

  • Perméable à la vapeur d’eau

  • Film de peinture élastique

  • Protection du film contre les champignons

  • Résistante à la salive et à la sueur (norme DIN 53 160)

Avant d’appliquer votre peinture de protection et d’obtenir un résultat final impeccable, une bonne préparation est essentielle.

C’est pour cela que notre fond pour bois à pores ouverts a été spécialement conçu.

Il pénètre en profondeur dans le bois tout en le laissant respirer. Il garantit une adhérence optimale pour la couche de peinture suivante. Vous profitez ainsi d’un résultat à la fois esthétique et durable, que vous utilisiez une lasure ou un vernis.

Pourquoi appliquer une couche de fond ?

  • Adhérence optimale pour les lasures et vernis

  • À pores ouverts et action en profondeur

  • Adapté à un usage extérieur

  • Protection filmogène contre les champignons

  • Résistant aux intempéries après séchage complet

Contenu du kit :

  • 2 × 2,5 L de fond pour bois

  • 3 × 2,5 L de peinture de protection contre les intempéries – rouge suédois

Détails du produit
Type de matériau Couleur
Référence R9.6.00004.0
Matériau Produits d'entretien
Type de produit Accessoires
Type d'accessoire Set de couleurs opaques
Couleur de base Rouge

Notre kit de peinture de protection contre les intempéries M - jusqu'à 48m² protège le bois à l'extérieur de manière fiable contre le soleil,

Notre kit de peinture de protection contre les intempéries M (jusqu’à 48 m²) protège efficacement vos bois extérieurs contre le soleil, la pluie, le froid et les rayons UV.

Grâce à son film de peinture élastique, il assure une protection durable tout en offrant une finition uniforme et colorée.

La peinture bois blanche, respectueuse de l’environnement, est particulièrement résistante. Elle ne s’écaille pas et convient parfaitement au bois brut de sciage ainsi qu’à toutes les constructions en bois destinées à l’extérieur.

Ses avantages :

  • Excellent pouvoir couvrant

  • Résistante aux intempéries et aux UV

  • Perméable à la vapeur d’eau

  • Film de peinture élastique

  • Protection du film contre les champignons

  • Résistante à la salive et à la sueur (norme DIN 53 160)

Avant d’appliquer votre peinture de protection et d’obtenir un résultat final impeccable, une bonne préparation est essentielle.

C’est pour cela que notre fond pour bois à pores ouverts a été spécialement conçu.

Il pénètre en profondeur dans le bois tout en le laissant respirer. Il garantit une adhérence optimale pour la couche de peinture suivante. Vous profitez ainsi d’un résultat à la fois esthétique et durable, que vous utilisiez une lasure ou un vernis.

Pourquoi appliquer une couche de fond ?

  • Adhérence optimale pour les lasures et vernis

  • À pores ouverts et action en profondeur

  • Adapté à un usage extérieur

  • Protection filmogène contre les champignons

  • Résistant aux intempéries après séchage complet

Contenu du kit :

  • 2 × 2,5 L de fond pour bois

  • 3 × 2,5 L de peinture de protection contre les intempéries – blanche

Détails du produit
Type de matériau Couleur
Matériau Produits d'entretien
Type de produit Accessoires
Type d'accessoire Set de couleurs opaques
Référence R9.6.00004.2
Couleur de base Blanc

Notre kit de peinture de protection contre les intempéries M - jusqu'à 48m² protège le bois à l'extérieur de manière fiable contre le soleil,

Notre kit de peinture de protection contre les intempéries M (jusqu’à 48 m²) protège efficacement vos bois extérieurs contre le soleil, la pluie, le froid et les rayons UV.

Grâce à son film de peinture élastique, il assure une protection durable tout en offrant une finition uniforme et colorée.

La peinture bois noire, respectueuse de l’environnement, est particulièrement résistante. Elle ne s’écaille pas et convient parfaitement au bois brut de sciage ainsi qu’à toutes les constructions en bois destinées à l’extérieur.

Ses avantages :

  • Excellent pouvoir couvrant

  • Résistante aux intempéries et aux UV

  • Perméable à la vapeur d’eau

  • Film de peinture élastique

  • Protection du film contre les champignons

  • Résistante à la salive et à la sueur (norme DIN 53 160)

Avant d’appliquer votre peinture de protection et d’obtenir un résultat final impeccable, une bonne préparation est essentielle.

C’est pour cela que notre fond pour bois à pores ouverts a été spécialement conçu.

Il pénètre en profondeur dans le bois tout en le laissant respirer. Il garantit une adhérence optimale pour la couche de peinture suivante. Vous profitez ainsi d’un résultat à la fois esthétique et durable, que vous utilisiez une lasure ou un vernis.

Pourquoi appliquer une couche de fond ?

  • Adhérence optimale pour les lasures et vernis

  • À pores ouverts et action en profondeur

  • Adapté à un usage extérieur

  • Protection filmogène contre les champignons

  • Résistant aux intempéries après séchage complet

Contenu du kit :

  • 2 × 2,5 L de fond pour bois

  • 3 × 2,5 L de peinture de protection contre les intempéries – noire

Détails du produit
Type de matériau Couleur
Matériau Produits d'entretien
Type de produit Accessoires
Type d'accessoire Set de couleurs opaques
Référence R9.6.00004.3
Couleur de base Noir

Notre kit de peinture de protection contre les intempéries M (jusqu’à 48 m²) protège efficacement vos bois extérieurs contre le soleil, la pluie, le froid et les rayons UV.

Grâce à son film de peinture élastique, il assure une protection durable tout en offrant une finition uniforme et colorée.

La peinture bois rouge satiné, respectueuse de l’environnement, est particulièrement résistante. Elle ne s’écaille pas et convient parfaitement au bois brut de sciage ainsi qu’à toutes les constructions en bois destinées à l’extérieur.

Ses avantages :

  • Excellent pouvoir couvrant

  • Résistante aux intempéries et aux UV

  • Perméable à la vapeur d’eau

  • Film de peinture élastique

  • Protection du film contre les champignons

  • Résistante à la salive et à la sueur (norme DIN 53 160)

Avant d’appliquer votre peinture de protection et d’obtenir un résultat final impeccable, une bonne préparation est essentielle.

C’est pour cela que notre fond pour bois à pores ouverts a été spécialement conçu.

Il pénètre en profondeur dans le bois tout en le laissant respirer. Il garantit une adhérence optimale pour la couche de peinture suivante. Vous profitez ainsi d’un résultat à la fois esthétique et durable, que vous utilisiez une lasure ou un vernis.

Pourquoi appliquer une couche de fond ?

  • Adhérence optimale pour les lasures et vernis

  • À pores ouverts et action en profondeur

  • Adapté à un usage extérieur

  • Protection filmogène contre les champignons

  • Résistant aux intempéries après séchage complet

Contenu du kit :

  • 2 × 2,5 L de fond pour bois

  • 3 × 2,5 L de peinture de protection contre les intempéries – gris anthracite

Détails du produit
Type de matériau Couleur
Matériau Produits d'entretien
Type de produit Accessoires
Type d'accessoire Set de couleurs opaques
Référence R9.6.00004.1
Couleur de base Gris anthracite

Kit de lasure pour bois - extérieur M - jusqu'à 48 m² - Weiß - Lasur

Plus de détails

Kit de lasure pour bois - extérieur M - jusqu'à 48 m² - Weiß - Lasur
Détails du produit
Surface de base 0.14
Référence R9.6.00007.0
Type d'accessoire Kit de lasure
Surface de base (m²) Gamme 0 - 10 m²
Matériau Produits d'entretien
Type de produit Accessoires
Couleur de base Blanc
Type de matériau Lasure

Notre kit de lasure transparente pour bois (extérieur M – jusqu’à 48 m²) est parfait pour protéger et embellir vos surfaces en bois extérieures. La lasure microporeuse résiste aux intempéries et à l’eau tout en laissant apparaître la structure naturelle du bois.

Grâce à sa protection filmogène contre les champignons et le bleuissement, elle convient idéalement aux fenêtres, portes, clôtures, pergolas, avancées de toit et bardages en bois.

Avant d’appliquer la lasure pour obtenir le rendu final, il est essentiel de bien préparer le bois. C’est pour cela que notre sous-couche microporeuse a été spécialement conçue.

Elle pénètre en profondeur, laisse le bois respirer et assure une excellente adhérence de la finition. Vous profitez ainsi d’un résultat optimal, aussi bien esthétique que durable.

Pourquoi appliquer une sous-couche ?

  • Meilleure adhérence des lasures et vernis

  • Action en profondeur, laisse respirer le bois

  • Adaptée à un usage extérieur

  • Protection contre les champignons

  • Résistante aux intempéries après séchage complet

Contenu du kit :

  • 2 × 2,5 L de sous-couche pour bois

  • 3 × 2,5 L de lasure blanche transparente

€ 229,00

Notre kit de lasure transparente pour bois (extérieur M – jusqu’à 48 m²) est parfait pour protéger et embellir vos surfaces en bois extérieures. La lasure microporeuse résiste aux intempéries et à l’eau tout en laissant apparaître la structure naturelle du bois.

Grâce à sa protection filmogène contre les champignons et le bleuissement, elle convient idéalement aux fenêtres, portes, clôtures, pergolas, avancées de toit et bardages en bois.

Avant d’appliquer la lasure pour obtenir le rendu final, il est essentiel de bien préparer le bois. C’est pour cela que notre sous-couche microporeuse a été spécialement conçue.

Elle pénètre en profondeur, laisse le bois respirer et assure une excellente adhérence de la finition. Vous profitez ainsi d’un résultat optimal, aussi bien esthétique que durable.

Pourquoi appliquer une sous-couche ?

  • Meilleure adhérence des lasures et vernis

  • Action en profondeur, laisse respirer le bois

  • Adaptée à un usage extérieur

  • Protection contre les champignons

  • Résistante aux intempéries après séchage complet

Contenu du kit :

  • 2 × 2,5 L de sous-couche pour bois

  • 3 × 2,5 L de lasure blanche transparente

Notre kit de lasure transparente pour bois (extérieur M – jusqu’à 48 m²) est parfait pour protéger et embellir vos surfaces en bois extérieures. La lasure microporeuse résiste aux intempéries et à l’eau tout en laissant apparaître la structure naturelle du bois.

Grâce à sa protection filmogène contre les champignons et le bleuissement, elle convient idéalement aux fenêtres, portes, clôtures, pergolas, avancées de toit et bardages en bois.

Avant d’appliquer la lasure pour obtenir le rendu final, il est essentiel de bien préparer le bois. C’est pour cela que notre sous-couche microporeuse a été spécialement conçue.

Elle pénètre en profondeur, laisse le bois respirer et assure une excellente adhérence de la finition. Vous profitez ainsi d’un résultat optimal, aussi bien esthétique que durable.

Pourquoi appliquer une sous-couche ?

  • Meilleure adhérence des lasures et vernis

  • Action en profondeur, laisse respirer le bois

  • Adaptée à un usage extérieur

  • Protection contre les champignons

  • Résistante aux intempéries après séchage complet

Contenu du kit :

  • 2 × 2,5 L de sous-couche pour bois

  • 3 × 2,5 L de lasure pin transparent

Notre kit de lasure transparente pour bois (extérieur M – jusqu’à 48 m²) est parfait pour protéger et embellir vos surfaces en bois extérieures. La lasure microporeuse résiste aux intempéries et à l’eau tout en laissant apparaître la structure naturelle du bois.

Grâce à sa protection filmogène contre les champignons et le bleuissement, elle convient idéalement aux fenêtres, portes, clôtures, pergolas, avancées de toit et bardages en bois.

Avant d’appliquer la lasure pour obtenir le rendu final, il est essentiel de bien préparer le bois. C’est pour cela que notre sous-couche microporeuse a été spécialement conçue.

Elle pénètre en profondeur, laisse le bois respirer et assure une excellente adhérence de la finition. Vous profitez ainsi d’un résultat optimal, aussi bien esthétique que durable.

Pourquoi appliquer une sous-couche ?

  • Meilleure adhérence des lasures et vernis

  • Action en profondeur, laisse respirer le bois

  • Adaptée à un usage extérieur

  • Protection contre les champignons

  • Résistante aux intempéries après séchage complet

Contenu du kit :

  • 2 × 2,5 L de sous-couche pour bois

  • 3 × 2,5 L de lasure gris clair transparent

Notre kit de lasure transparente pour bois (extérieur M – jusqu’à 48 m²) est parfait pour protéger et embellir vos surfaces en bois extérieures. La lasure microporeuse résiste aux intempéries et à l’eau tout en laissant apparaître la structure naturelle du bois.

Grâce à sa protection filmogène contre les champignons et le bleuissement, elle convient idéalement aux fenêtres, portes, clôtures, pergolas, avancées de toit et bardages en bois.

Avant d’appliquer la lasure pour obtenir le rendu final, il est essentiel de bien préparer le bois. C’est pour cela que notre sous-couche microporeuse a été spécialement conçue.

Elle pénètre en profondeur, laisse le bois respirer et assure une excellente adhérence de la finition. Vous profitez ainsi d’un résultat optimal, aussi bien esthétique que durable.

Pourquoi appliquer une sous-couche ?

  • Meilleure adhérence des lasures et vernis

  • Action en profondeur, laisse respirer le bois

  • Adaptée à un usage extérieur

  • Protection contre les champignons

  • Résistante aux intempéries après séchage complet

Contenu du kit :

  • 2 × 2,5 L de sous-couche pour bois

  • 3 × 2,5 L de lasure gris anthracite transparent

Notre kit de lasure transparente pour bois (extérieur M – jusqu’à 48 m²) est parfait pour protéger et embellir vos surfaces en bois extérieures. La lasure microporeuse résiste aux intempéries et à l’eau tout en laissant apparaître la structure naturelle du bois.

Grâce à sa protection filmogène contre les champignons et le bleuissement, elle convient idéalement aux fenêtres, portes, clôtures, pergolas, avancées de toit et bardages en bois.

Avant d’appliquer la lasure pour obtenir le rendu final, il est essentiel de bien préparer le bois. C’est pour cela que notre sous-couche microporeuse a été spécialement conçue.

Elle pénètre en profondeur, laisse le bois respirer et assure une excellente adhérence de la finition. Vous profitez ainsi d’un résultat optimal, aussi bien esthétique que durable.

Pourquoi appliquer une sous-couche ?

  • Meilleure adhérence des lasures et vernis

  • Action en profondeur, laisse respirer le bois

  • Adaptée à un usage extérieur

  • Protection contre les champignons

  • Résistante aux intempéries après séchage complet

Contenu du kit :

  • 2 × 2,5 L de sous-couche pour bois

  • 3 × 2,5 L de lasure blanche transparente

Détails du produit
Surface de base 0.14
Référence R9.6.00007.0
Type d'accessoire Kit de lasure
Surface de base (m²) Gamme 0 - 10 m²
Matériau Produits d'entretien
Type de produit Accessoires
Couleur de base Blanc
Type de matériau Lasure

Notre kit de lasure transparente pour bois (extérieur M – jusqu’à 48 m²) est parfait pour protéger et embellir vos surfaces en bois extérieures. La lasure microporeuse résiste aux intempéries et à l’eau tout en laissant apparaître la structure naturelle du bois.

Grâce à sa protection filmogène contre les champignons et le bleuissement, elle convient idéalement aux fenêtres, portes, clôtures, pergolas, avancées de toit et bardages en bois.

Avant d’appliquer la lasure pour obtenir le rendu final, il est essentiel de bien préparer le bois. C’est pour cela que notre sous-couche microporeuse a été spécialement conçue.

Elle pénètre en profondeur, laisse le bois respirer et assure une excellente adhérence de la finition. Vous profitez ainsi d’un résultat optimal, aussi bien esthétique que durable.

Pourquoi appliquer une sous-couche ?

  • Meilleure adhérence des lasures et vernis

  • Action en profondeur, laisse respirer le bois

  • Adaptée à un usage extérieur

  • Protection contre les champignons

  • Résistante aux intempéries après séchage complet

Contenu du kit :

  • 2 × 2,5 L de sous-couche pour bois

  • 3 × 2,5 L de lasure pin transparent

Détails du produit
Surface de base 0.14
Type d'accessoire Kit de lasure
Surface de base (m²) Gamme 0 - 10 m²
Matériau Produits d'entretien
Type de produit Accessoires
Type de matériau Lasure
Référence R9.6.00007.1
Couleur de base Pin

Notre kit de lasure transparente pour bois (extérieur M – jusqu’à 48 m²) est parfait pour protéger et embellir vos surfaces en bois extérieures. La lasure microporeuse résiste aux intempéries et à l’eau tout en laissant apparaître la structure naturelle du bois.

Grâce à sa protection filmogène contre les champignons et le bleuissement, elle convient idéalement aux fenêtres, portes, clôtures, pergolas, avancées de toit et bardages en bois.

Avant d’appliquer la lasure pour obtenir le rendu final, il est essentiel de bien préparer le bois. C’est pour cela que notre sous-couche microporeuse a été spécialement conçue.

Elle pénètre en profondeur, laisse le bois respirer et assure une excellente adhérence de la finition. Vous profitez ainsi d’un résultat optimal, aussi bien esthétique que durable.

Pourquoi appliquer une sous-couche ?

  • Meilleure adhérence des lasures et vernis

  • Action en profondeur, laisse respirer le bois

  • Adaptée à un usage extérieur

  • Protection contre les champignons

  • Résistante aux intempéries après séchage complet

Contenu du kit :

  • 2 × 2,5 L de sous-couche pour bois

  • 3 × 2,5 L de lasure gris clair transparent

Détails du produit
Type d'accessoire Kit de lasure
Matériau Produits d'entretien
Type de produit Accessoires
Type de matériau Lasure
Couleur de base Gris clair
Référence R9.6.00007.2

Notre kit de lasure transparente pour bois (extérieur M – jusqu’à 48 m²) est parfait pour protéger et embellir vos surfaces en bois extérieures. La lasure microporeuse résiste aux intempéries et à l’eau tout en laissant apparaître la structure naturelle du bois.

Grâce à sa protection filmogène contre les champignons et le bleuissement, elle convient idéalement aux fenêtres, portes, clôtures, pergolas, avancées de toit et bardages en bois.

Avant d’appliquer la lasure pour obtenir le rendu final, il est essentiel de bien préparer le bois. C’est pour cela que notre sous-couche microporeuse a été spécialement conçue.

Elle pénètre en profondeur, laisse le bois respirer et assure une excellente adhérence de la finition. Vous profitez ainsi d’un résultat optimal, aussi bien esthétique que durable.

Pourquoi appliquer une sous-couche ?

  • Meilleure adhérence des lasures et vernis

  • Action en profondeur, laisse respirer le bois

  • Adaptée à un usage extérieur

  • Protection contre les champignons

  • Résistante aux intempéries après séchage complet

Contenu du kit :

  • 2 × 2,5 L de sous-couche pour bois

  • 3 × 2,5 L de lasure gris anthracite transparent

Détails du produit
Type d'accessoire Kit de lasure
Matériau Produits d'entretien
Type de produit Accessoires
Type de matériau Lasure
Référence R9.6.00007.3
Couleur de base Gris anthracite
Plans de montage et documents
Abri de jardin Alpholz Peter Téléchargements disponibles : Conseils-de-securite-pour-les-abris-de-jardin-alpholz.pdf
Avis clients

Note moyenne de 0 sur 5 étoiles

(0)

Note moyenne de 0 sur 5 étoiles

(0 Avis)
Détails du produit
Épaisseur de paroi
40
Type de matériau
Epicéa nordique
Traitement de surface
Sans
Couleur de base
Naturel
Surface de base
24
Dimensions totales (cm)
590 x 500
Hauteur totale
348
Volume de l'espace
63,6
Sol
Accessoires optionnels
Type de construction
Madriers
Mezzanine
Inclus
Type de toiture
Monopente
Surface du toit (m²)
30,5
Pente du toit
15
Toiture
Accessoires optionnels
Dimensions intérieures (cm)
542 x 472
Nombre de pièces
2
Dimensions de la base (cm)
546 x 468
Dimensions de la porte (cm)
154 x 185 cm|85 x 185 cm|85 x185 cm
Nombre de fenêtres
8
Type de fenêtre
Fenêtre au niveau du sol
Dimensions de la fenêtre (cm)
83 x 37 cm|55 x 185 cm
Vitrages
Verre ISO

Ces produits pourraient vous plaire :