Passer au contenu principal Passer à la recherche Passer à la navigation principale
Nous contacter
Sales Contact Image
Conseil de vente 080 011 464
Service de rappel
Jours
-33 % sur les accessoires | Code : ACCESSOIRES33
Quantité Prix unitaire
À 1
4 759,00 €*
5 699,00 €* (-940,00 € gespart)
À partir de 1
4 759,00 €*
5 699,00 €* (-940,00 € gespart)

Note moyenne de 4.1 sur 5 étoiles

(7)

Poolhouse - Abri de jardin Atrium E

Les accessoires sélectionnés ci-dessous seront ajoutés au panier.
Purchase Advice Image
Nos experts vous aident à faire le meilleur choix Tel 080 011 464
Une question ? On vous fait une offre !
Délai de livraison 3-4 semaines
Paid Delivery Icon
Paiement sécurisé
Skonto Icon
-2 % avec le virement bancaire
Opter pour une variante du produit
Imprégnation protectrice :
Sans impregnation protectrice
Épaisseur du mur (mm) :
34 mm Wandstärke
Livraison à la période souhaitée
Accessoires adaptés à ce produit
Description

Si tu ne veux pas renoncer à ton abri de jardin en hiver, notre abri de jardin Atrium E très apprécié est exactement ce qu'il te faut. Mais tu peux aussi profiter du confort de cette maison à n'importe quelle autre saison. Avec ses deux pièces séparées, elle offre beaucoup de place aussi bien pour se détendre que pour ranger suffisamment d'outils de jardin et autres.

Grande stabilité

✓ Design moderne

Toit en bois massif

Détails de l'article de l'abri de jardin Atrium E :

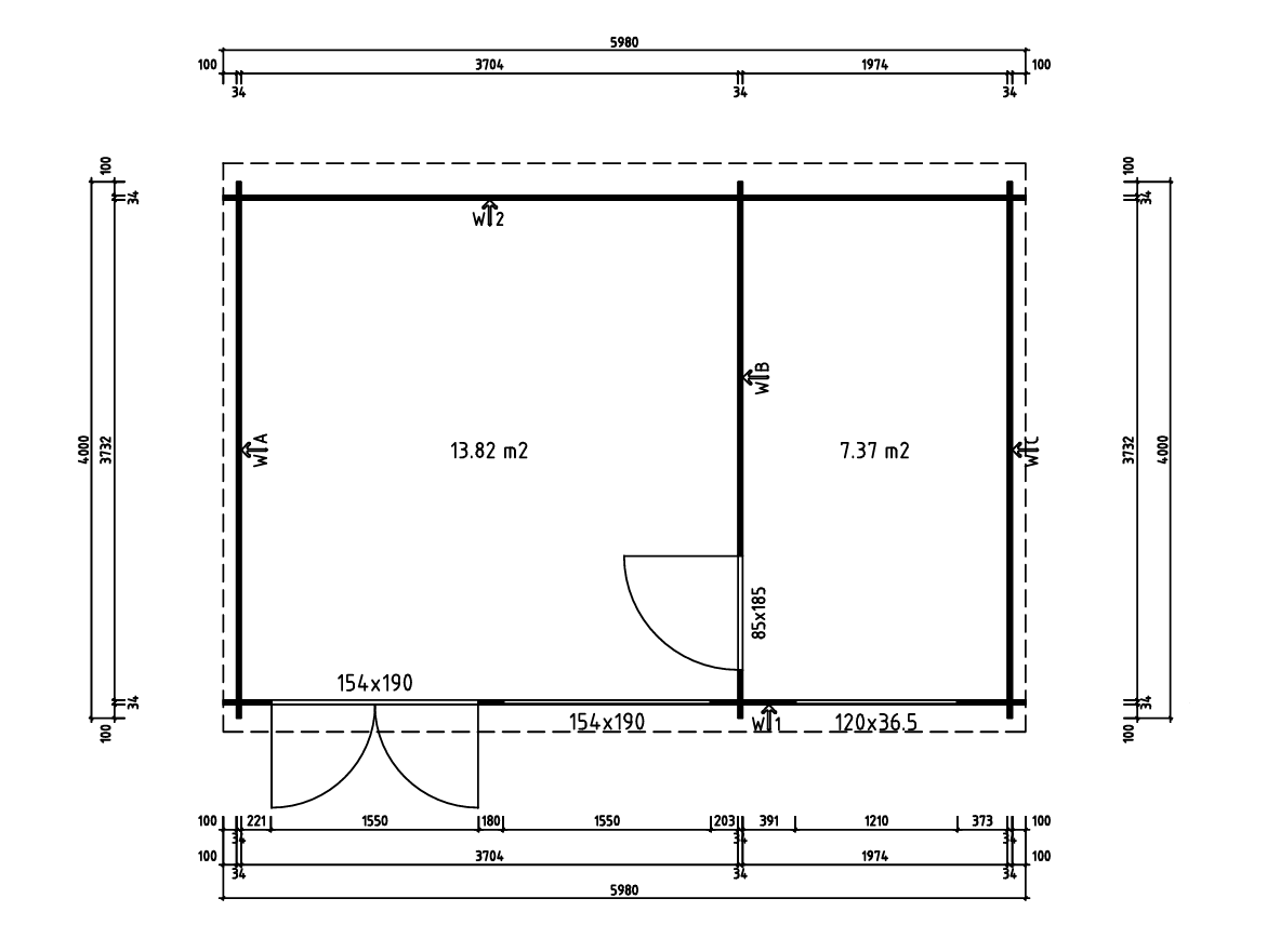
  • Dimensions du socle : 577 x 377 cm
  • Surface de base : environ 22 m²
  • Volume de la pièce : env. 45 m³
  • Double porte en bois lamellé : env. 154 x 190 cm
  • Porte intérieure en bois lamellé : env. 85 x 185 cm
  • Grand élément de fenêtre : env. 154 x 190 cm
  • Fenêtre d'imposte : env. 120 x 37 cm
  • Hauteur totale : env. 230 cm
  • Hauteur des parois latérales : env. 196 cm
  • Épaisseur des parois : 34 mm

Inclus dans la livraison de l'abri de jardin Atrium E :

  • Toit en bois massif en planches à rainure et languette
  • Porte double en bois collé avec cadre en bois collé
  • Porte simple en bois lamellé pour la pièce annexe
  • grand élément de fenêtre au ras du sol
  • fenêtre en imposte pour la pièce annexe
  • vitrage des portes & fenêtres en verre ISO
  • seuil de porte en acier inoxydable de haute qualité
  • serrure, garniture de poignée, matériel de montage & plan de montage
  • grille d'aération pour une meilleure circulation de l'air dans l'abri de jardin
  • protection contre la tempête à l'intérieur
  • Livraison sans couverture de toit
  • Livraison en nature sans traitement de peinture
  • Livraison sans plancher (disponible comme accessoire)
  • Si les fenêtres ou les portes sont livrées avec des croisillons, ceux-ci sont livrés séparément.
    Vous avez donc toujours le choix de donner à votre maison un aspect classique avec des croisillons/croix en bois ou plus moderne sans croisillons.
Accessoires et Services
3 Accessoire(s) sont actuellement séléctionné(s) (incluant nos recommandations). Les quantités adaptées sont déjà définies.

Ce dont vous avez besoin pour le montage

Set eco Accessoires de montage et de fixation S

Plus de détails

Set eco Accessoires de montage et de fixation S

Set d'accessoires de base avec jusqu'à 20% d'économie par rapport à l'achat individuel !

Le kit parfait pour un montage sûr et l'ancrage de ton abri de jardin - protège de manière fiable contre l'humidité, le vent et les tempêtes. En un seul clic, tu reçois tous les composants importants en quantité suffisante pour une construction durable et stable.

Composé de :

  • Barrière contre l'humidité (env. 50 pièces) en granulés de caoutchouc spéciaux - Protège contre les remontées d'humidité, compense les inégalités et assure le drainage et la circulation de l'air.
  • Équerre anti-tempête (set de 4 pièces) - Pour fixer solidement l'abri de jardin aux fondations (vis & chevilles non fournies).
  • Kit d'ancrage au vent (kit pour 2 côtés) - Relie les madriers supérieurs et inférieurs et les empêche de s'écarter en cas de tempête.

Notre recommandation

Pour une protection optimale et durable contre les tempêtes et l'humidité, nous recommandons l'utilisation combinée de tous les composants contenus dans le kit. Ainsi, ton abri de jardin est fixé de la meilleure manière possible et protégé de manière fiable contre le vent et les intempéries.

€ 139,00

Set eco parquet universel 24 m² - Plancher 18 mm, bois naturel non traité

Plus de détails

Set eco parquet universel 24 m² - Plancher 18 mm, bois naturel non traité

Kit universel de planchers en bois avec jusqu'à 20% d'économie par rapport à l'achat individuel !

Adapté à la maison - Avec ce kit, vous avez en un clic le nombre de paquets de planchers en bois correspondant au produit que vous souhaitez.

Contenu du set :

  • planches à rainure et languette de 18 mm d'épaisseur, naturelles
  • nombre approprié de plinthes, avec ou sans imprégnation en usine
  • bois de fondation imprégné en autoclave
  • l'imprégnation peut éventuellement différer de la couleur de la maison
  • matériau : épicéa nordique

Veuillez noter que le plancher doit être adapté individuellement. Une notice de montage détaillée est jointe au kit.

Ce kit est calculé pour des maisons d'une surface de base de 21,01 à 24 m². Si vous n'êtes pas sûr(e), nous vous recommandons d'acheter les articles séparément.

€ 1.599,00

Kit universel de planchers en bois avec jusqu'à 20% d'économie par rapport à l'achat individuel !

Adapté à la maison - Avec ce kit, vous avez en un clic le nombre de paquets de planchers en bois correspondant au produit que vous souhaitez.

Contenu du set :

  • planches à rainure et languette de 18 mm d'épaisseur, naturelles
  • nombre approprié de plinthes, avec ou sans imprégnation en usine
  • bois de fondation imprégné en autoclave
  • l'imprégnation peut éventuellement différer de la couleur de la maison
  • matériau : épicéa nordique

Veuillez noter que le plancher doit être adapté individuellement. Une notice de montage détaillée est jointe au kit.

Ce kit est calculé pour des maisons d'une surface de base de 21,01 à 24 m². Si vous n'êtes pas sûr(e), nous vous recommandons d'acheter les articles séparément.

Kit universel de planchers en bois avec jusqu'à 20% d'économie par rapport à l'achat individuel !

Adapté à la maison - Avec ce set, vous avez en un clic le nombre de paquets de planchers en bois correspondant au produit que vous souhaitez.

Contenu du set :

  • planches à rainure et languette de 28 mm d'épaisseur, imprégnées en usine
  • nombre approprié de plinthes, avec ou sans imprégnation en usine
  • bois de fondation imprégné en autoclave
  • l'imprégnation peut éventuellement différer de la couleur de la maison
  • matériau : épicéa nordique

Veuillez noter que le plancher doit être adapté individuellement. Une notice de montage détaillée est jointe au kit.

Ce kit est calculé pour des maisons d'une surface de base de 21,01 à 24 m². Si vous n'êtes pas sûr(e), nous vous recommandons d'acheter les articles séparément.

Kit universel de planchers en bois avec jusqu'à 20% d'économie par rapport à l'achat individuel !

Adapté à la maison - Avec ce kit, vous avez en un clic le nombre de paquets de planchers en bois correspondant au produit que vous souhaitez.

Contenu du set :

  • planches à rainure et languette de 18 mm d'épaisseur, naturelles
  • nombre approprié de plinthes, avec ou sans imprégnation en usine
  • bois de fondation imprégné en autoclave
  • l'imprégnation peut éventuellement différer de la couleur de la maison
  • matériau : épicéa nordique

Veuillez noter que le plancher doit être adapté individuellement. Une notice de montage détaillée est jointe au kit.

Ce kit est calculé pour des maisons d'une surface de base de 21,01 à 24 m². Si vous n'êtes pas sûr(e), nous vous recommandons d'acheter les articles séparément.

Kit universel de planchers en bois avec jusqu'à 20% d'économie par rapport à l'achat individuel !

Adapté à la maison - Avec ce set, vous avez en un clic le nombre de paquets de planchers en bois correspondant au produit que vous souhaitez.

Contenu du set :

  • planches à rainure et languette de 28 mm d'épaisseur, imprégnées en usine
  • nombre approprié de plinthes, avec ou sans imprégnation en usine
  • bois de fondation imprégné en autoclave
  • l'imprégnation peut éventuellement différer de la couleur de la maison
  • matériau : épicéa nordique

Veuillez noter que le plancher doit être adapté individuellement. Une notice de montage détaillée est jointe au kit.

Ce kit est calculé pour des maisons d'une surface de base de 21,01 à 24 m². Si vous n'êtes pas sûr(e), nous vous recommandons d'acheter les articles séparément.

Premium Sparset EPDM Couverture de toit - 4,57 x 7,7 m

Plus de détails

Premium Sparset EPDM Couverture de toit - 4,57 x 7,7 m

Ton kit complet sans entretien pour un toit à l'abri de la pluie à long terme - le kit complet EPDM à un prix avantageux avec 20 ans de garantie du fabricant !

Contenu de la livraison :

- Découpe de film EPDM : 4,57 x 7,7 m

- colle de surface

- Rouleau avec poignée

- Cornière type 1c (13 pièces) y compris vis de ferblantier avec rondelles d'étanchéité

Feuille en EPDM :

Découvrez l'étanchéité de toiture au plus haut niveau - simple, sûre, durable et pérenne. Notre film de toiture EPDM convainc par une combinaison de longévité exceptionnelle, de respect de l'environnement et de mise en œuvre sans effort.

✓ 2 0 ans de garantie du fabricant - pour une sécurité maximale et une confiance dans la qualité.
Plus de 50 ans d'espérance de vie - un investissement qui traverse les générations.
Étanchéité de toiture agréée - testée et certifiée pour une utilisation professionnelle.
Durable & recyclable - peut être éliminé en fin de vie de manière écologique avec les déchets ménagers.
Résiste aux racines - convient parfaitement à la végétalisation de ton toit et à la construction écologique.
Facile à poser - pas d'outils spéciaux, pas de chalumeau à gaz, pas de poste à souder nécessaire.
Étanchéité sans soudure en une seule pièce - protège de manière fiable contre l'humidité et les intempéries.

Misez sur l'EPDM - la solution intelligente pour votre toit, qui allie parfaitement durabilité, respect de l'environnement et facilité d'utilisation.

- Dimensions du film : 4,57 m x 7,7 m

- épaisseur 1,2 mm

- Poids surfacique : 1,5 kg/m

- Haute stabilité thermique de -45 °C à +130 °C

- Exempt de plastifiants

- Résistant aux UV, résistant à l'ozone

- Élasticité durable, allongement à la rupture > 300

Cornière de type 1c :

Pour une couverture de toit durable et sûre : la cornière en aluminium de type 1 c protège de manière fiable les transitions entre la couverture de toit et le bord du toit contre les infiltrations d'humidité. Il assure non seulement un maintien durable, mais aussi une finition propre et esthétique de la toiture - idéal pour les toits plats et les toits en appentis.

- Matériau : aluminium

- Couleur : anthracite revêtu par poudre

- longueur : 2 m

- Épaisseur : 0,8 mm

Vis de ferblantier avec rondelles d'étanchéité :

Les vis de ferblantier de haute qualité avec rondelle d'étanchéité assurent une fixation durablement étanche et stable des cornières. Conseil : Pour une meilleure tenue, nous recommandons 4 vis par profilé.

- Dimension : 4,5 mm de diamètre et 20 mm de longueur / Torx.

- Couleur : anthracite RAL 7016

Le pack d'accessoires est parfaitement adapté aux besoins habituels. Selon le type de fixation et de chevauchement, la consommation de matériel peut varier légèrement.

€ 1.349,00

Set de gouttières RG 100 - pour 1 côté de toit jusqu'à 9 m - Anthracite métallisé

Plus de détails

Set de gouttières RG 100 - pour 1 côté de toit jusqu'à 9 m - Anthracite métallisé

Pour les maisons en bois massif d'une longueur de côté jusqu'à 9 m, set complet pour 1 côté de la maison en bois.

Les kits de gouttières Marley protègent les murs et les fondations des cabanes de jardin et des maisons en bois massif de manière sûre et fiable contre les dommages causés par l'eau de pluie.

Les avantages :

  • Kit complet avec gouttières, tuyaux de descente et accessoires de fixation.
  • Facile à monter
  • Tout est fourni dans le kit
  • Résistant aux intempéries, aux UV et à la température
  • Plastique résistant aux chocs et de haute qualité
  • Qualité supérieure - Made in Germany
  • 10 ans de garantie

Contenu du set :

  • 4x Gouttière, demi-ronde 2 m RG 100
  • 2x Gouttière, demi-ronde 1 m RG 100
  • 4x coque de raccordement de gouttière RG 100
  • 4x embout pour gauche et droite RG 100
  • 18x support de gouttière RG 100
  • 18x équerres de réglage pour support de gouttière
  • 2x manchons RG 100 / DN 75
  • 4x coude de tuyau DN 75, 45
  • 2x tuyau de descente DN 75 2 m
  • 4x Collier de serrage avec boulon à œil

€ 499,00

Pour les maisons en bois massif d'une longueur de côté jusqu'à 9 m, set complet pour 1 côté de la maison en bois.

Les kits de gouttières Marley protègent les murs et les fondations des cabanes de jardin et des maisons en bois massif de manière sûre et fiable contre les dommages causés par l'eau de pluie.

Les avantages :

  • Kit complet avec gouttières, tuyaux de descente et accessoires de fixation.
  • Facile à monter
  • Tout est fourni dans le kit
  • Résistant aux intempéries, aux UV et à la température
  • Plastique résistant aux chocs et de haute qualité
  • Qualité supérieure - Made in Germany
  • 10 ans de garantie

Contenu du set :

  • 4x Gouttière, demi-ronde 2 m RG 100
  • 2x Gouttière, demi-ronde 1 m RG 100
  • 4x coque de raccordement de gouttière RG 100
  • 4x embout pour gauche et droite RG 100
  • 18x support de gouttière RG 100
  • 18x équerres de réglage pour support de gouttière
  • 2x manchons RG 100 / DN 75
  • 4x coude de tuyau DN 75, 45
  • 2x tuyau de descente DN 75 2 m
  • 4x Collier de serrage avec boulon à œil

Pour les maisons en bois massif d'une longueur de côté jusqu'à 9 m, set complet pour 1 côté de la maison en bois.

Les kits de gouttières Marley protègent les murs et les fondations des cabanes de jardin et des maisons en bois massif de manière sûre et fiable contre les dommages causés par l'eau de pluie.

Les avantages :

  • Kit complet avec gouttières, tuyaux de descente et accessoires de fixation.
  • Facile à monter
  • Tout est fourni dans le kit
  • Résistant aux intempéries, aux UV et à la température
  • Plastique résistant aux chocs et de haute qualité
  • Qualité supérieure - Made in Germany
  • 10 ans de garantie

Contenu du set :

  • 4x Gouttière, demi-ronde 2 m RG 100
  • 2x Gouttière, demi-ronde 1 m RG 100
  • 4x coque de raccordement de gouttière RG 100
  • 4x embout pour gauche et droite RG 100
  • 18x support de gouttière RG 100
  • 18x équerres de réglage pour support de gouttière
  • 2x manchons RG 100 / DN 75
  • 4x coude de tuyau DN 75, 45
  • 2x tuyau de descente DN 75 2 m
  • 4x Collier de serrage avec boulon à œil

Attache de gouttière

Plus de détails

Attache de gouttière

Une gouttière est la finition professionnelle de l'avant-toit. Il constitue la tôle de transition entre la surface du toit et la gouttière. L'insert assure une entrée d'eau contrôlée dans la gouttière.

Matériau : acier galvanisé, revêtu par poudre.

Dimensions : A:60 mm, B:125 mm, D:15 mm

Longueur : 200 cm

Épaisseur : 0,50 mm

Vis de ferblantier incluses

€ 39,00

Livraison à la période souhaitée et service administratif

Garantie Confort

Plus de détails

Garantie Confort

Quels produits sont couverts par la Garantie Confort ?

Notre Garantie Confort s'applique exclusivement aux produits destinés à un usage privé, notamment :

  • Abris de jardin et cabanes à outils – un espace de détente ou une solution de stockage pratique
  • Saunas – pour des moments de bien-être et de relaxation à domicile
  • Aires de jeux pour enfants – un espace ludique pour s’amuser en toute sécurité
  • Pavillons en bois – un coin de paradis dans votre jardin
  • Carports – une protection efficace pour votre véhicule contre la pluie, la neige et le soleil
  • Garages – un espace sécurisé avec du rangement supplémentaire

Grâce à cette garantie, vous bénéficiez d’un produit de qualité et d’une assistance rapide en cas de besoin.

Que couvre la Garantie Confort ?

Avec la Garantie Confort, pas d’inquiétude à avoir. En cas de dommage, vous recevez gratuitement les pièces de rechange, pour les éléments suivants : 

  • Portes (bris de verre jusqu’à 200€)
  • Fenêtres (bris de verre jusqu’à 200€)
  • Gouttières – pour une évacuation efficace de l’eau
  • Serrures de porte – pour une sécurité optimale
  • Ferrures – pour remplacer de petites pièces essentielles
  • Revêtement de toiture (feutre bitumé, bardeaux, KSK) – une protection efficace contre les intempéries

À savoir :
La Garantie Confort couvre uniquement la fourniture des pièces de rechange. L’installation reste à votre charge.

Avec la Garantie Confort, vous bénéficiez d’une protection optimale et profitez pleinement de votre produit Abrineo.be en toute sérénité.

Conditions de garantie

Retrouvez tous les détails et informations supplémentaires sur la Garantie Confort

€ 69,00

Accessoires pour votre produit

PGH Huile-cire dure 0,75 L

Plus de détails

PGH Huile-cire dure 0,75 L

Huile-cire dure de haute qualité pour l'intérieur

Notre huile-cire dure offre une solution de haute qualité pour l'apprêt et le traitement de différents supports absorbants à l'intérieur. Avec une surface satinée et résistante qui ravive les structures naturelles et approfondit les teintes, elle offre les meilleurs résultats pour les sols en bois, en liège, en pierre et autres surfaces. Facile à appliquer et testée selon les normes les plus strictes, elle est le choix idéal pour des résultats professionnels.

Détails de l'article Huile-cire dure :

  • Application : Apprêt et traitement des supports absorbants à l'intérieur.

  • Propriétés : surface satinée, approfondit la teinte, hydrofuge.
  • Testée sur la résistance aux produits chimiques et la migration.
  • Composants : huile de lin, huile de bois, huile de ricin, ester de résine naturelle, autres.
  • Teneur en COV : max. 440 g/l (valeur limite UE : max. 500 g/l).
  • Application : Agiter avant l'emploi, appliquer en fine couche, polir.
  • Temps de séchage : env. 6-12 heures, recouvrable après 16-24 heures.
  • Consommation : 30-50 g/m² ; rendement env. 20 m²/l.
  • Stockage : Au frais, au sec, non ouvert, se conserve au moins 24 mois.
  • Élimination des déchets : Selon les prescriptions locales.
  • Remarques : Les couleurs sont données à titre indicatif, il est recommandé de faire un essai.

€ 39,00

Kit de protection anti-intempéries M – jusqu’à 48 m² - Schwedenrot - Wetterschutzfarbe

Plus de détails

Kit de protection anti-intempéries M – jusqu’à 48 m² - Schwedenrot - Wetterschutzfarbe

Notre kit de peinture de protection contre les intempéries M (jusqu’à 48 m²) protège efficacement vos bois extérieurs contre le soleil, la pluie, le froid et les rayons UV.

Grâce à son film de peinture élastique, il assure une protection durable tout en offrant une finition uniforme et colorée.

La peinture bois rouge satiné, respectueuse de l’environnement, est particulièrement résistante. Elle ne s’écaille pas et convient parfaitement au bois brut de sciage ainsi qu’à toutes les constructions en bois destinées à l’extérieur.

Ses avantages :

  • Excellent pouvoir couvrant

  • Résistante aux intempéries et aux UV

  • Perméable à la vapeur d’eau

  • Film de peinture élastique

  • Protection du film contre les champignons

  • Résistante à la salive et à la sueur (norme DIN 53 160)

Avant d’appliquer votre peinture de protection et d’obtenir un résultat final impeccable, une bonne préparation est essentielle.

C’est pour cela que notre fond pour bois à pores ouverts a été spécialement conçu.

Il pénètre en profondeur dans le bois tout en le laissant respirer. Il garantit une adhérence optimale pour la couche de peinture suivante. Vous profitez ainsi d’un résultat à la fois esthétique et durable, que vous utilisiez une lasure ou un vernis.

Pourquoi appliquer une couche de fond ?

  • Adhérence optimale pour les lasures et vernis

  • À pores ouverts et action en profondeur

  • Adapté à un usage extérieur

  • Protection filmogène contre les champignons

  • Résistant aux intempéries après séchage complet

Contenu du kit :

  • 2 × 2,5 L de fond pour bois

  • 3 × 2,5 L de peinture de protection contre les intempéries – rouge suédois

€ 239,00

Notre kit de peinture de protection contre les intempéries M (jusqu’à 48 m²) protège efficacement vos bois extérieurs contre le soleil, la pluie, le froid et les rayons UV.

Grâce à son film de peinture élastique, il assure une protection durable tout en offrant une finition uniforme et colorée.

La peinture bois rouge satiné, respectueuse de l’environnement, est particulièrement résistante. Elle ne s’écaille pas et convient parfaitement au bois brut de sciage ainsi qu’à toutes les constructions en bois destinées à l’extérieur.

Ses avantages :

  • Excellent pouvoir couvrant

  • Résistante aux intempéries et aux UV

  • Perméable à la vapeur d’eau

  • Film de peinture élastique

  • Protection du film contre les champignons

  • Résistante à la salive et à la sueur (norme DIN 53 160)

Avant d’appliquer votre peinture de protection et d’obtenir un résultat final impeccable, une bonne préparation est essentielle.

C’est pour cela que notre fond pour bois à pores ouverts a été spécialement conçu.

Il pénètre en profondeur dans le bois tout en le laissant respirer. Il garantit une adhérence optimale pour la couche de peinture suivante. Vous profitez ainsi d’un résultat à la fois esthétique et durable, que vous utilisiez une lasure ou un vernis.

Pourquoi appliquer une couche de fond ?

  • Adhérence optimale pour les lasures et vernis

  • À pores ouverts et action en profondeur

  • Adapté à un usage extérieur

  • Protection filmogène contre les champignons

  • Résistant aux intempéries après séchage complet

Contenu du kit :

  • 2 × 2,5 L de fond pour bois

  • 3 × 2,5 L de peinture de protection contre les intempéries – rouge suédois

Notre kit de peinture de protection contre les intempéries M - jusqu'à 48m² protège le bois à l'extérieur de manière fiable contre le soleil,

Notre kit de peinture de protection contre les intempéries M (jusqu’à 48 m²) protège efficacement vos bois extérieurs contre le soleil, la pluie, le froid et les rayons UV.

Grâce à son film de peinture élastique, il assure une protection durable tout en offrant une finition uniforme et colorée.

La peinture bois blanche, respectueuse de l’environnement, est particulièrement résistante. Elle ne s’écaille pas et convient parfaitement au bois brut de sciage ainsi qu’à toutes les constructions en bois destinées à l’extérieur.

Ses avantages :

  • Excellent pouvoir couvrant

  • Résistante aux intempéries et aux UV

  • Perméable à la vapeur d’eau

  • Film de peinture élastique

  • Protection du film contre les champignons

  • Résistante à la salive et à la sueur (norme DIN 53 160)

Avant d’appliquer votre peinture de protection et d’obtenir un résultat final impeccable, une bonne préparation est essentielle.

C’est pour cela que notre fond pour bois à pores ouverts a été spécialement conçu.

Il pénètre en profondeur dans le bois tout en le laissant respirer. Il garantit une adhérence optimale pour la couche de peinture suivante. Vous profitez ainsi d’un résultat à la fois esthétique et durable, que vous utilisiez une lasure ou un vernis.

Pourquoi appliquer une couche de fond ?

  • Adhérence optimale pour les lasures et vernis

  • À pores ouverts et action en profondeur

  • Adapté à un usage extérieur

  • Protection filmogène contre les champignons

  • Résistant aux intempéries après séchage complet

Contenu du kit :

  • 2 × 2,5 L de fond pour bois

  • 3 × 2,5 L de peinture de protection contre les intempéries – blanche

Notre kit de peinture de protection contre les intempéries M - jusqu'à 48m² protège le bois à l'extérieur de manière fiable contre le soleil,

Notre kit de peinture de protection contre les intempéries M (jusqu’à 48 m²) protège efficacement vos bois extérieurs contre le soleil, la pluie, le froid et les rayons UV.

Grâce à son film de peinture élastique, il assure une protection durable tout en offrant une finition uniforme et colorée.

La peinture bois noire, respectueuse de l’environnement, est particulièrement résistante. Elle ne s’écaille pas et convient parfaitement au bois brut de sciage ainsi qu’à toutes les constructions en bois destinées à l’extérieur.

Ses avantages :

  • Excellent pouvoir couvrant

  • Résistante aux intempéries et aux UV

  • Perméable à la vapeur d’eau

  • Film de peinture élastique

  • Protection du film contre les champignons

  • Résistante à la salive et à la sueur (norme DIN 53 160)

Avant d’appliquer votre peinture de protection et d’obtenir un résultat final impeccable, une bonne préparation est essentielle.

C’est pour cela que notre fond pour bois à pores ouverts a été spécialement conçu.

Il pénètre en profondeur dans le bois tout en le laissant respirer. Il garantit une adhérence optimale pour la couche de peinture suivante. Vous profitez ainsi d’un résultat à la fois esthétique et durable, que vous utilisiez une lasure ou un vernis.

Pourquoi appliquer une couche de fond ?

  • Adhérence optimale pour les lasures et vernis

  • À pores ouverts et action en profondeur

  • Adapté à un usage extérieur

  • Protection filmogène contre les champignons

  • Résistant aux intempéries après séchage complet

Contenu du kit :

  • 2 × 2,5 L de fond pour bois

  • 3 × 2,5 L de peinture de protection contre les intempéries – noire

Notre kit de peinture de protection contre les intempéries M (jusqu’à 48 m²) protège efficacement vos bois extérieurs contre le soleil, la pluie, le froid et les rayons UV.

Grâce à son film de peinture élastique, il assure une protection durable tout en offrant une finition uniforme et colorée.

La peinture bois rouge satiné, respectueuse de l’environnement, est particulièrement résistante. Elle ne s’écaille pas et convient parfaitement au bois brut de sciage ainsi qu’à toutes les constructions en bois destinées à l’extérieur.

Ses avantages :

  • Excellent pouvoir couvrant

  • Résistante aux intempéries et aux UV

  • Perméable à la vapeur d’eau

  • Film de peinture élastique

  • Protection du film contre les champignons

  • Résistante à la salive et à la sueur (norme DIN 53 160)

Avant d’appliquer votre peinture de protection et d’obtenir un résultat final impeccable, une bonne préparation est essentielle.

C’est pour cela que notre fond pour bois à pores ouverts a été spécialement conçu.

Il pénètre en profondeur dans le bois tout en le laissant respirer. Il garantit une adhérence optimale pour la couche de peinture suivante. Vous profitez ainsi d’un résultat à la fois esthétique et durable, que vous utilisiez une lasure ou un vernis.

Pourquoi appliquer une couche de fond ?

  • Adhérence optimale pour les lasures et vernis

  • À pores ouverts et action en profondeur

  • Adapté à un usage extérieur

  • Protection filmogène contre les champignons

  • Résistant aux intempéries après séchage complet

Contenu du kit :

  • 2 × 2,5 L de fond pour bois

  • 3 × 2,5 L de peinture de protection contre les intempéries – gris anthracite

Notre kit de peinture de protection contre les intempéries M (jusqu’à 48 m²) protège efficacement vos bois extérieurs contre le soleil, la pluie, le froid et les rayons UV.

Grâce à son film de peinture élastique, il assure une protection durable tout en offrant une finition uniforme et colorée.

La peinture bois rouge satiné, respectueuse de l’environnement, est particulièrement résistante. Elle ne s’écaille pas et convient parfaitement au bois brut de sciage ainsi qu’à toutes les constructions en bois destinées à l’extérieur.

Ses avantages :

  • Excellent pouvoir couvrant

  • Résistante aux intempéries et aux UV

  • Perméable à la vapeur d’eau

  • Film de peinture élastique

  • Protection du film contre les champignons

  • Résistante à la salive et à la sueur (norme DIN 53 160)

Avant d’appliquer votre peinture de protection et d’obtenir un résultat final impeccable, une bonne préparation est essentielle.

C’est pour cela que notre fond pour bois à pores ouverts a été spécialement conçu.

Il pénètre en profondeur dans le bois tout en le laissant respirer. Il garantit une adhérence optimale pour la couche de peinture suivante. Vous profitez ainsi d’un résultat à la fois esthétique et durable, que vous utilisiez une lasure ou un vernis.

Pourquoi appliquer une couche de fond ?

  • Adhérence optimale pour les lasures et vernis

  • À pores ouverts et action en profondeur

  • Adapté à un usage extérieur

  • Protection filmogène contre les champignons

  • Résistant aux intempéries après séchage complet

Contenu du kit :

  • 2 × 2,5 L de fond pour bois

  • 3 × 2,5 L de peinture de protection contre les intempéries – rouge suédois

Notre kit de peinture de protection contre les intempéries M - jusqu'à 48m² protège le bois à l'extérieur de manière fiable contre le soleil,

Notre kit de peinture de protection contre les intempéries M (jusqu’à 48 m²) protège efficacement vos bois extérieurs contre le soleil, la pluie, le froid et les rayons UV.

Grâce à son film de peinture élastique, il assure une protection durable tout en offrant une finition uniforme et colorée.

La peinture bois blanche, respectueuse de l’environnement, est particulièrement résistante. Elle ne s’écaille pas et convient parfaitement au bois brut de sciage ainsi qu’à toutes les constructions en bois destinées à l’extérieur.

Ses avantages :

  • Excellent pouvoir couvrant

  • Résistante aux intempéries et aux UV

  • Perméable à la vapeur d’eau

  • Film de peinture élastique

  • Protection du film contre les champignons

  • Résistante à la salive et à la sueur (norme DIN 53 160)

Avant d’appliquer votre peinture de protection et d’obtenir un résultat final impeccable, une bonne préparation est essentielle.

C’est pour cela que notre fond pour bois à pores ouverts a été spécialement conçu.

Il pénètre en profondeur dans le bois tout en le laissant respirer. Il garantit une adhérence optimale pour la couche de peinture suivante. Vous profitez ainsi d’un résultat à la fois esthétique et durable, que vous utilisiez une lasure ou un vernis.

Pourquoi appliquer une couche de fond ?

  • Adhérence optimale pour les lasures et vernis

  • À pores ouverts et action en profondeur

  • Adapté à un usage extérieur

  • Protection filmogène contre les champignons

  • Résistant aux intempéries après séchage complet

Contenu du kit :

  • 2 × 2,5 L de fond pour bois

  • 3 × 2,5 L de peinture de protection contre les intempéries – blanche

Notre kit de peinture de protection contre les intempéries M - jusqu'à 48m² protège le bois à l'extérieur de manière fiable contre le soleil,

Notre kit de peinture de protection contre les intempéries M (jusqu’à 48 m²) protège efficacement vos bois extérieurs contre le soleil, la pluie, le froid et les rayons UV.

Grâce à son film de peinture élastique, il assure une protection durable tout en offrant une finition uniforme et colorée.

La peinture bois noire, respectueuse de l’environnement, est particulièrement résistante. Elle ne s’écaille pas et convient parfaitement au bois brut de sciage ainsi qu’à toutes les constructions en bois destinées à l’extérieur.

Ses avantages :

  • Excellent pouvoir couvrant

  • Résistante aux intempéries et aux UV

  • Perméable à la vapeur d’eau

  • Film de peinture élastique

  • Protection du film contre les champignons

  • Résistante à la salive et à la sueur (norme DIN 53 160)

Avant d’appliquer votre peinture de protection et d’obtenir un résultat final impeccable, une bonne préparation est essentielle.

C’est pour cela que notre fond pour bois à pores ouverts a été spécialement conçu.

Il pénètre en profondeur dans le bois tout en le laissant respirer. Il garantit une adhérence optimale pour la couche de peinture suivante. Vous profitez ainsi d’un résultat à la fois esthétique et durable, que vous utilisiez une lasure ou un vernis.

Pourquoi appliquer une couche de fond ?

  • Adhérence optimale pour les lasures et vernis

  • À pores ouverts et action en profondeur

  • Adapté à un usage extérieur

  • Protection filmogène contre les champignons

  • Résistant aux intempéries après séchage complet

Contenu du kit :

  • 2 × 2,5 L de fond pour bois

  • 3 × 2,5 L de peinture de protection contre les intempéries – noire

Notre kit de peinture de protection contre les intempéries M (jusqu’à 48 m²) protège efficacement vos bois extérieurs contre le soleil, la pluie, le froid et les rayons UV.

Grâce à son film de peinture élastique, il assure une protection durable tout en offrant une finition uniforme et colorée.

La peinture bois rouge satiné, respectueuse de l’environnement, est particulièrement résistante. Elle ne s’écaille pas et convient parfaitement au bois brut de sciage ainsi qu’à toutes les constructions en bois destinées à l’extérieur.

Ses avantages :

  • Excellent pouvoir couvrant

  • Résistante aux intempéries et aux UV

  • Perméable à la vapeur d’eau

  • Film de peinture élastique

  • Protection du film contre les champignons

  • Résistante à la salive et à la sueur (norme DIN 53 160)

Avant d’appliquer votre peinture de protection et d’obtenir un résultat final impeccable, une bonne préparation est essentielle.

C’est pour cela que notre fond pour bois à pores ouverts a été spécialement conçu.

Il pénètre en profondeur dans le bois tout en le laissant respirer. Il garantit une adhérence optimale pour la couche de peinture suivante. Vous profitez ainsi d’un résultat à la fois esthétique et durable, que vous utilisiez une lasure ou un vernis.

Pourquoi appliquer une couche de fond ?

  • Adhérence optimale pour les lasures et vernis

  • À pores ouverts et action en profondeur

  • Adapté à un usage extérieur

  • Protection filmogène contre les champignons

  • Résistant aux intempéries après séchage complet

Contenu du kit :

  • 2 × 2,5 L de fond pour bois

  • 3 × 2,5 L de peinture de protection contre les intempéries – gris anthracite

Kit de lasure pour bois - extérieur M - jusqu'à 48 m² - Weiß - Lasur

Plus de détails

Kit de lasure pour bois - extérieur M - jusqu'à 48 m² - Weiß - Lasur

Notre kit de lasure transparente pour bois (extérieur M – jusqu’à 48 m²) est parfait pour protéger et embellir vos surfaces en bois extérieures. La lasure microporeuse résiste aux intempéries et à l’eau tout en laissant apparaître la structure naturelle du bois.

Grâce à sa protection filmogène contre les champignons et le bleuissement, elle convient idéalement aux fenêtres, portes, clôtures, pergolas, avancées de toit et bardages en bois.

Avant d’appliquer la lasure pour obtenir le rendu final, il est essentiel de bien préparer le bois. C’est pour cela que notre sous-couche microporeuse a été spécialement conçue.

Elle pénètre en profondeur, laisse le bois respirer et assure une excellente adhérence de la finition. Vous profitez ainsi d’un résultat optimal, aussi bien esthétique que durable.

Pourquoi appliquer une sous-couche ?

  • Meilleure adhérence des lasures et vernis

  • Action en profondeur, laisse respirer le bois

  • Adaptée à un usage extérieur

  • Protection contre les champignons

  • Résistante aux intempéries après séchage complet

Contenu du kit :

  • 2 × 2,5 L de sous-couche pour bois

  • 3 × 2,5 L de lasure blanche transparente

€ 229,00

Notre kit de lasure transparente pour bois (extérieur M – jusqu’à 48 m²) est parfait pour protéger et embellir vos surfaces en bois extérieures. La lasure microporeuse résiste aux intempéries et à l’eau tout en laissant apparaître la structure naturelle du bois.

Grâce à sa protection filmogène contre les champignons et le bleuissement, elle convient idéalement aux fenêtres, portes, clôtures, pergolas, avancées de toit et bardages en bois.

Avant d’appliquer la lasure pour obtenir le rendu final, il est essentiel de bien préparer le bois. C’est pour cela que notre sous-couche microporeuse a été spécialement conçue.

Elle pénètre en profondeur, laisse le bois respirer et assure une excellente adhérence de la finition. Vous profitez ainsi d’un résultat optimal, aussi bien esthétique que durable.

Pourquoi appliquer une sous-couche ?

  • Meilleure adhérence des lasures et vernis

  • Action en profondeur, laisse respirer le bois

  • Adaptée à un usage extérieur

  • Protection contre les champignons

  • Résistante aux intempéries après séchage complet

Contenu du kit :

  • 2 × 2,5 L de sous-couche pour bois

  • 3 × 2,5 L de lasure blanche transparente

Notre kit de lasure transparente pour bois (extérieur M – jusqu’à 48 m²) est parfait pour protéger et embellir vos surfaces en bois extérieures. La lasure microporeuse résiste aux intempéries et à l’eau tout en laissant apparaître la structure naturelle du bois.

Grâce à sa protection filmogène contre les champignons et le bleuissement, elle convient idéalement aux fenêtres, portes, clôtures, pergolas, avancées de toit et bardages en bois.

Avant d’appliquer la lasure pour obtenir le rendu final, il est essentiel de bien préparer le bois. C’est pour cela que notre sous-couche microporeuse a été spécialement conçue.

Elle pénètre en profondeur, laisse le bois respirer et assure une excellente adhérence de la finition. Vous profitez ainsi d’un résultat optimal, aussi bien esthétique que durable.

Pourquoi appliquer une sous-couche ?

  • Meilleure adhérence des lasures et vernis

  • Action en profondeur, laisse respirer le bois

  • Adaptée à un usage extérieur

  • Protection contre les champignons

  • Résistante aux intempéries après séchage complet

Contenu du kit :

  • 2 × 2,5 L de sous-couche pour bois

  • 3 × 2,5 L de lasure pin transparent

Notre kit de lasure transparente pour bois (extérieur M – jusqu’à 48 m²) est parfait pour protéger et embellir vos surfaces en bois extérieures. La lasure microporeuse résiste aux intempéries et à l’eau tout en laissant apparaître la structure naturelle du bois.

Grâce à sa protection filmogène contre les champignons et le bleuissement, elle convient idéalement aux fenêtres, portes, clôtures, pergolas, avancées de toit et bardages en bois.

Avant d’appliquer la lasure pour obtenir le rendu final, il est essentiel de bien préparer le bois. C’est pour cela que notre sous-couche microporeuse a été spécialement conçue.

Elle pénètre en profondeur, laisse le bois respirer et assure une excellente adhérence de la finition. Vous profitez ainsi d’un résultat optimal, aussi bien esthétique que durable.

Pourquoi appliquer une sous-couche ?

  • Meilleure adhérence des lasures et vernis

  • Action en profondeur, laisse respirer le bois

  • Adaptée à un usage extérieur

  • Protection contre les champignons

  • Résistante aux intempéries après séchage complet

Contenu du kit :

  • 2 × 2,5 L de sous-couche pour bois

  • 3 × 2,5 L de lasure gris clair transparent

Notre kit de lasure transparente pour bois (extérieur M – jusqu’à 48 m²) est parfait pour protéger et embellir vos surfaces en bois extérieures. La lasure microporeuse résiste aux intempéries et à l’eau tout en laissant apparaître la structure naturelle du bois.

Grâce à sa protection filmogène contre les champignons et le bleuissement, elle convient idéalement aux fenêtres, portes, clôtures, pergolas, avancées de toit et bardages en bois.

Avant d’appliquer la lasure pour obtenir le rendu final, il est essentiel de bien préparer le bois. C’est pour cela que notre sous-couche microporeuse a été spécialement conçue.

Elle pénètre en profondeur, laisse le bois respirer et assure une excellente adhérence de la finition. Vous profitez ainsi d’un résultat optimal, aussi bien esthétique que durable.

Pourquoi appliquer une sous-couche ?

  • Meilleure adhérence des lasures et vernis

  • Action en profondeur, laisse respirer le bois

  • Adaptée à un usage extérieur

  • Protection contre les champignons

  • Résistante aux intempéries après séchage complet

Contenu du kit :

  • 2 × 2,5 L de sous-couche pour bois

  • 3 × 2,5 L de lasure gris anthracite transparent

Notre kit de lasure transparente pour bois (extérieur M – jusqu’à 48 m²) est parfait pour protéger et embellir vos surfaces en bois extérieures. La lasure microporeuse résiste aux intempéries et à l’eau tout en laissant apparaître la structure naturelle du bois.

Grâce à sa protection filmogène contre les champignons et le bleuissement, elle convient idéalement aux fenêtres, portes, clôtures, pergolas, avancées de toit et bardages en bois.

Avant d’appliquer la lasure pour obtenir le rendu final, il est essentiel de bien préparer le bois. C’est pour cela que notre sous-couche microporeuse a été spécialement conçue.

Elle pénètre en profondeur, laisse le bois respirer et assure une excellente adhérence de la finition. Vous profitez ainsi d’un résultat optimal, aussi bien esthétique que durable.

Pourquoi appliquer une sous-couche ?

  • Meilleure adhérence des lasures et vernis

  • Action en profondeur, laisse respirer le bois

  • Adaptée à un usage extérieur

  • Protection contre les champignons

  • Résistante aux intempéries après séchage complet

Contenu du kit :

  • 2 × 2,5 L de sous-couche pour bois

  • 3 × 2,5 L de lasure blanche transparente

Notre kit de lasure transparente pour bois (extérieur M – jusqu’à 48 m²) est parfait pour protéger et embellir vos surfaces en bois extérieures. La lasure microporeuse résiste aux intempéries et à l’eau tout en laissant apparaître la structure naturelle du bois.

Grâce à sa protection filmogène contre les champignons et le bleuissement, elle convient idéalement aux fenêtres, portes, clôtures, pergolas, avancées de toit et bardages en bois.

Avant d’appliquer la lasure pour obtenir le rendu final, il est essentiel de bien préparer le bois. C’est pour cela que notre sous-couche microporeuse a été spécialement conçue.

Elle pénètre en profondeur, laisse le bois respirer et assure une excellente adhérence de la finition. Vous profitez ainsi d’un résultat optimal, aussi bien esthétique que durable.

Pourquoi appliquer une sous-couche ?

  • Meilleure adhérence des lasures et vernis

  • Action en profondeur, laisse respirer le bois

  • Adaptée à un usage extérieur

  • Protection contre les champignons

  • Résistante aux intempéries après séchage complet

Contenu du kit :

  • 2 × 2,5 L de sous-couche pour bois

  • 3 × 2,5 L de lasure pin transparent

Notre kit de lasure transparente pour bois (extérieur M – jusqu’à 48 m²) est parfait pour protéger et embellir vos surfaces en bois extérieures. La lasure microporeuse résiste aux intempéries et à l’eau tout en laissant apparaître la structure naturelle du bois.

Grâce à sa protection filmogène contre les champignons et le bleuissement, elle convient idéalement aux fenêtres, portes, clôtures, pergolas, avancées de toit et bardages en bois.

Avant d’appliquer la lasure pour obtenir le rendu final, il est essentiel de bien préparer le bois. C’est pour cela que notre sous-couche microporeuse a été spécialement conçue.

Elle pénètre en profondeur, laisse le bois respirer et assure une excellente adhérence de la finition. Vous profitez ainsi d’un résultat optimal, aussi bien esthétique que durable.

Pourquoi appliquer une sous-couche ?

  • Meilleure adhérence des lasures et vernis

  • Action en profondeur, laisse respirer le bois

  • Adaptée à un usage extérieur

  • Protection contre les champignons

  • Résistante aux intempéries après séchage complet

Contenu du kit :

  • 2 × 2,5 L de sous-couche pour bois

  • 3 × 2,5 L de lasure gris clair transparent

Notre kit de lasure transparente pour bois (extérieur M – jusqu’à 48 m²) est parfait pour protéger et embellir vos surfaces en bois extérieures. La lasure microporeuse résiste aux intempéries et à l’eau tout en laissant apparaître la structure naturelle du bois.

Grâce à sa protection filmogène contre les champignons et le bleuissement, elle convient idéalement aux fenêtres, portes, clôtures, pergolas, avancées de toit et bardages en bois.

Avant d’appliquer la lasure pour obtenir le rendu final, il est essentiel de bien préparer le bois. C’est pour cela que notre sous-couche microporeuse a été spécialement conçue.

Elle pénètre en profondeur, laisse le bois respirer et assure une excellente adhérence de la finition. Vous profitez ainsi d’un résultat optimal, aussi bien esthétique que durable.

Pourquoi appliquer une sous-couche ?

  • Meilleure adhérence des lasures et vernis

  • Action en profondeur, laisse respirer le bois

  • Adaptée à un usage extérieur

  • Protection contre les champignons

  • Résistante aux intempéries après séchage complet

Contenu du kit :

  • 2 × 2,5 L de sous-couche pour bois

  • 3 × 2,5 L de lasure gris anthracite transparent

Plans de montage et documents
Poolhouse - Abri de jardin Atrium E Téléchargements disponibles : Conseils-de-securite-pour-les-abris-de-jardin-alpholz.pdf
Avis clients

Note moyenne de 4.1 sur 5 étoiles

(7)

Note moyenne de 4.1 sur 5 étoiles

(7 Avis)

Note moyenne de 5 sur 5 étoiles

Note moyenne de 3 sur 5 étoiles

Note moyenne de 3.5 sur 5 étoiles

Note moyenne de 4 sur 5 étoiles

Note moyenne de 4 sur 5 étoiles

Note moyenne de 4.5 sur 5 étoiles

Note moyenne de 5 sur 5 étoiles

Détails du produit
Épaisseur de paroi
34
Type de matériau
Epicéa nordique | Pin
Traitement de surface
Sans
Couleur de base
Naturel
Surface de base
22
Dimensions totales (cm)
598 x 420
Hauteur totale
230
Volume de l'espace
45
Sol
Accessoires optionnels
Type de construction
Madriers
Type de toiture
Monopente
Surface du toit (m²)
25,4
Pente du toit
4
Toiture
Sans
Dimensions intérieures (cm)
571 x 373
Nombre de pièces
2
Dimensions de la base (cm)
575 x 377
Dimensions de la porte (cm)
154 x 190 cm | 85 x 185 cm
Nombre de fenêtres
2
Type de fenêtre
Fenêtre au niveau du sol | Fenêtre puit de lumière
Dimensions de la fenêtre (cm)
154 x 190 cm|120 x 37 cm
Vitrages
Verre ISO

Photos clients

Ces produits pourraient vous plaire :